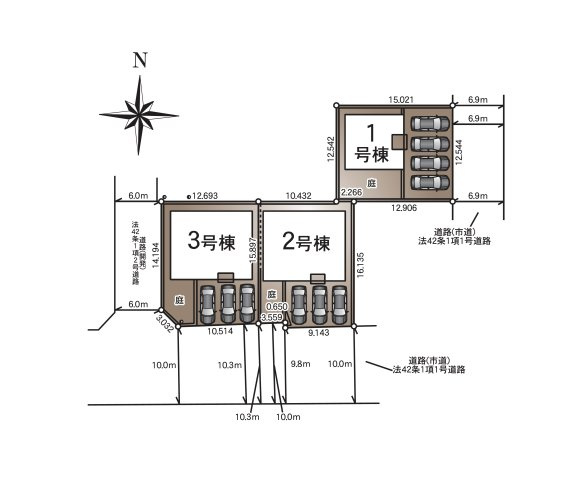
菊池市泗水町吉富第8₋3棟(2号棟)
2,188万円
熊本電気鉄道「御代志」駅徒歩94分
熊本電気鉄道「再春医療センター前」駅徒歩93分
熊本電気鉄道「熊本高専前」駅徒歩97分
【内観:施工例】明るく開放的なリビングダイニングは豊かな陽光が注ぎ込み、やすらぎの空間を演出してくれます。ご家族で楽しいひとときをお過ごし下さい。※家具はCGを合成したものです。
- 価格
- 2,188万円
- 間取り
- 4LDK
- 土地面積
- 205.09㎡
- 建物面積
- 95.58㎡
- 築年月
- 2026年1月(予定)
- ※事前に必ずお問い合わせください
- ■ご案内方法
お客様の専属担当がご自宅までの送迎や最寄駅までの送迎も行います。
又、弊社までご来店して頂きご案内も可能です。
お客様無料駐車場もご用意しておりますのでお気軽にお車でもご来店下さい。 -
バストイレ別
-
室内洗濯機置場
-
TVモニタ付きインターホン
-
カウンターキッチン

リビング
キッチン
風呂
寝室
外観- 販売戸数
- 3戸
- 総戸数
- 3戸
- 間取り / 詳細
- 4LDK
LDK 18.5帖 1室/和室 4.5帖 1室/洋室 7.5帖 1室/洋室 6.5帖 1室/洋室 4.5帖 1室
4LDK+パントリー+ランドリールーム - 向き
- 南
- 建物面積(坪数)
- 95.58㎡(28.91坪)
- 土地面積(坪数)
- 205.09㎡(62.03坪)
- 建ぺい率 /
容積率 - 70%/200%
- 築年月
- 2026年1月(予定)
- 駐車場 /
月額料金 - 有(3台) -
- 土地権利
- 所有権
- 土地
(敷金 / 保証金) - - / -
- 建物構造
- 木造 / 1階建
- 傾斜地部分面積
- -
- 路地状敷地
- -
- 私道負担面積
- -
- セットバック
- 無
- 高圧線下面積
- -
- 施工会社
- -
- 用途地域
- 無指定
- 地目 / 地勢
- 宅地 / 平坦
- 接道状況
- 一方(南 公道 9.8m)
- 国土法届出要否
- 不要
- 都市計画
- 非線引区域
- 総区画数 /
販売区画数 - 3区画/3区画
- 現況
- 未完成
- その他
法令上の制限 - 法第22条区域
- 取引態様
- 仲介
- 引渡し
- 2026年2月下旬
- 取引条件の
有効期限 - 2026年03月05日
- 設備条件
-
- 陽当り良好 / 建設住宅性能評価書付 / 眺望良好 / カードキー / 現地見学会 / 室内洗濯機置場 / フローリング / 公営水道 / 公共下水 / オール電化 / 二重サッシ / 24時間換気システム / 駐車3台可 / IHクッキングヒーター / コンロ2口以上 / システムキッチン / カウンターキッチン / コンロ3口 / バス・トイレ別 / 浴室1坪以上 / 床下収納 / 収納豊富 / TVモニタ付インターホン / 宅配ボックス / 複層ガラス / ディンプルキー
- 設備(その他)
-
-
-
- 物件番号
- 98557971
- 管理コード
- △
- 建築確認番号
- 第R07SHC117274号
- 情報更新日
- 2026年02月19日
- 次回更新予定日
- 2026年03月05日
- 取扱会社
-
- ハウススタイル
- 熊本県熊本市東区下南部3丁目3-40-2 1F
- TEL:096-384-6060
- 国土交通大臣 (1) 第009933号
- (公社)熊本県宅地建物取引業協会
(公社)宮崎県宅地建物取引業協会
(公社)全国宅地建物取引業保証協会
(一社)九州不動産公正取引協議会加盟
- 備考
- 通学区域内の小学校は菊池市立泗水小学校で徒歩25分です。TVインターフォン付きの物件です。今回紹介するのは、建物面積が95.58平米。近所に迷惑かけないように窓に二重サッシをつけました。熊本電気鉄道御代志周辺で新たな生活をスタートするのであれば、ハウススタイルから不動産情報をお求めください。
-
コンビニエンスストア
セブンイレブン 泗水吉富店
715m(9分)
-
スーパー
マルショク 泗水店
1678m(21分)
-
銀行
JA菊池泗水中央支所
1702m(22分)
-
コンビニエンスストア
セブンイレブン 泗水富の原店
1713m(22分)
-
銀行
肥後銀行泗水支店
1847m(24分)
-
スーパー
黒潮市場 泗水店
1862m(24分)
-
小学校
菊池市立泗水小学校
1968m(25分)
-
中学校
菊池市立泗水中学校
2112m(27分)
-
駅
御代志駅
7094m(89分)
-
駅
肥後大津駅
16342m(205分)
- 月々の支払額
- 9.6円
- 購入希望物件価格
-
万円
- 頭金
-
万円
- 金利
-
%
- 返済額(ボーナス1回分)
-
万円
- 返済期間
-
年
現地見学会
物件の特徴
セールスポイント
泗水小学校まで徒歩約25分。泗水中学校まで徒歩約27分。オール電化住宅。駐車3台可能。大人気の平屋です。
ポイント
24時間換気システム LDK18帖以上 駐車並列3台 ダブルロックキー クロゼット
担当者のコメント
パノラマ画像
基本情報
設備条件
その他
周辺施設
支払いシミュレーション
※ボーナスは自動で年2回分で計算されます。
近隣の物件
よく見られている物件
菊池市泗水町吉富第8₋3棟(2号棟)
2,188万円
-
4LDK(95.58㎡)