熊本市北区鶴羽田4丁目第2-2棟(1号棟)

2,480万円

熊本県熊本市北区鶴羽田4丁目12-10

熊本電気鉄道「三ツ石」駅徒歩16分

熊本電気鉄道「須屋」駅徒歩17分

熊本電気鉄道「新須屋」駅徒歩23分

価格
2,480万円
間取り/建物面積
3LDK/88.60㎡
所在地
熊本県熊本市北区鶴羽田4丁目12-10
築年
2024年11月(新築)
駐車
有(2台)
交通

熊本電気鉄道三ツ石」駅 徒歩16分車3分 0.6km

熊本電気鉄道須屋」駅 徒歩17分

熊本電気鉄道新須屋」駅 徒歩23分

熊本市北区鶴羽田4丁目第2-2棟(1号棟)の基本情報

物件名
熊本市北区鶴羽田4丁目第2-2棟(1号棟)
価格
2,480万円
建物面積
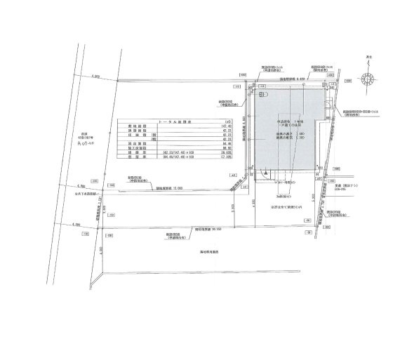
88.60㎡
土地面積
44.58坪(147.40㎡)
築年月
2024年11月(新築)
総戸数
2戸
所在地
熊本県熊本市北区鶴羽田4丁目12-10
交通

熊本電気鉄道三ツ石」駅 徒歩16分車3分 0.6km

熊本電気鉄道須屋」駅 徒歩17分

熊本電気鉄道新須屋」駅 徒歩23分

熊本市北区鶴羽田4丁目第2-2棟(1号棟)の詳細情報

設備条件
  • 閑静な住宅地
  • 駐車2台可
  • 宅配ボックス
設備(その他)
    -
駐車場/月額
有(2台)/-
土地権利
所有権
国土法届出
不要
用途地域
第一種中高層住居専用
取引態様
仲介
引渡し
即時

熊本市北区鶴羽田4丁目第2-2棟(1号棟)で募集中の物件

  1. 26.80坪 (88.60㎡)

    2,480万円(55.63万円/坪)

周辺施設

  • ローソン 熊本合志菊南店の画像

    コンビニエンスストア

    ローソン 熊本合志菊南店

    522m(7分)

  • 肥後銀行須屋支店の画像

    銀行

    肥後銀行須屋支店

    529m(7分)

  • セブンイレブン 合志須屋南店の画像

    コンビニエンスストア

    セブンイレブン 合志須屋南店

    566m(8分)

  • スーパーキッド菊南店の画像

    スーパー

    スーパーキッド菊南店

    1026m(13分)

  • 熊本銀行菊南支店の画像

    銀行

    熊本銀行菊南支店

    1317m(17分)

  • DCMダイキ 北部店の画像

    ホームセンター

    DCMダイキ 北部店

    2356m(30分)

  • 熊本市立北部中学校の画像

    中学校

    熊本市立北部中学校

    3385m(43分)

  • SHOPPING PLAZA WECKY(ショッピングプラザウエッキー)の画像

    ショッピングセンター

    SHOPPING PLAZA WECKY(ショッピングプラザウエッキー)

    6729m(85分)

近隣の物件

  1. 熊本市北区龍田弓削1丁目

    4LDK (96.05㎡)

    2,790万円

  2. 熊本市北区鶴羽田4丁目

    4LDK (105.16㎡)

    2,398万円

  3. 熊本市北区鶴羽田4丁目

    4LDK (107.64㎡)

    2,498万円

  4. 熊本市北区鶴羽田4丁目

    4LDK (105.99㎡)

    2,498万円

熊本市北区鶴羽田4丁目第2-2棟(1号棟)

お気軽にお問い合わせください

LINEからお問い合わせ 無料お問い合わせ

ハウススタイル

096-384-6060

09:00~18:00

(休:水曜日)