糟屋郡須恵町新原第5-3棟(2号棟)

3,588万円

福岡県糟屋郡須惠町大字新原376-11

香椎線「新原」駅徒歩4分

香椎線「須恵中央」駅徒歩11分

香椎線「宇美」駅徒歩22分

価格
3,588万円
間取り/建物面積
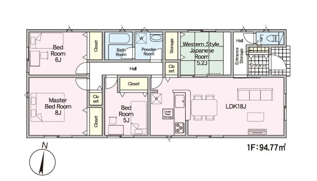
4LDK/94.77㎡
所在地
福岡県糟屋郡須惠町大字新原376-11
築年
2026年2月(予定)
駐車
有(4台)
交通

香椎線新原」駅 徒歩4分車1分 0.2km

香椎線須恵中央」駅 徒歩11分

香椎線宇美」駅 徒歩22分

糟屋郡須恵町新原第5-3棟(2号棟)の基本情報

物件名
糟屋郡須恵町新原第5-3棟(2号棟)
価格
3,588万円
建物面積
94.77㎡
土地面積
71.66坪(236.92㎡)
築年月
2026年2月(予定)
総戸数
3戸
所在地
福岡県糟屋郡須惠町大字新原376-11
交通

香椎線新原」駅 徒歩4分車1分 0.2km

香椎線須恵中央」駅 徒歩11分

香椎線宇美」駅 徒歩22分

糟屋郡須恵町新原第5-3棟(2号棟)の詳細情報

設備条件
  • 建設住宅性能評価書付
  • 耐震構造
  • 宅配ボックス
設備(その他)
    -
駐車場/月額
有(4台)/-
土地権利
所有権
国土法届出
不要
用途地域
第一種住居
取引態様
仲介
引渡し
2026年2月下旬

糟屋郡須恵町新原第5-3棟(2号棟)で募集中の物件

  1. 28.66坪 (94.77㎡)

    3,588万円(125.19万円/坪)

周辺施設

  • 新原の画像

    新原

    298m(4分)

  • セブンイレブン 須恵新原店の画像

    コンビニエンスストア

    セブンイレブン 須恵新原店

    474m(6分)

  • JA粕屋須恵支所の画像

    銀行

    JA粕屋須恵支所

    749m(10分)

  • トレードマート須恵店の画像

    スーパー

    トレードマート須恵店

    822m(11分)

  • 須恵町立須恵中学校の画像

    中学校

    須恵町立須恵中学校

    848m(11分)

  • 西日本シティ銀行須恵支店の画像

    銀行

    西日本シティ銀行須恵支店

    909m(12分)

  • ミニストップ 上須恵店の画像

    コンビニエンスストア

    ミニストップ 上須恵店

    1003m(13分)

  • 長沢ストアーの画像

    スーパー

    長沢ストアー

    1311m(17分)

  • 須恵町立須恵第三小学校の画像

    小学校

    須恵町立須恵第三小学校

    1855m(24分)

  • 門松駅の画像

    門松駅

    4925m(62分)

近隣の物件

  1. 糟屋郡須惠町大字須惠

    4LDK (101.81㎡)

    3,698万円

  2. 糟屋郡須惠町大字上須惠

    4LDK (93.14㎡)

    2,688万円

  3. 糟屋郡須惠町大字佐谷

    3LDK (85.04㎡)

    2,588万円

  4. 糟屋郡須惠町大字植木

    4LDK (103.27㎡)

    3,388万円

糟屋郡須恵町新原第5-3棟(2号棟)

お気軽にお問い合わせください

LINEからお問い合わせ 無料お問い合わせ

ハウススタイル

096-384-6060

09:00~18:00

(休:水曜日)