【居間・リビング】キッチンからリビングをしっかり確認できます。家族の笑顔があふれる空間になりそうですね。※家具はCGを合成したものです。
- 価格
- 2,330万円
- 間取り
- 3LDK
- 土地面積
- 148.75㎡
- 建物面積
- 90.24㎡
- 築年月
- 2025年5月(新築)
- ※事前に必ずお問い合わせください
- ■ご案内方法
お客様の専属担当がご自宅までの送迎や最寄駅までの送迎も行います。
又、弊社までご来店して頂きご案内も可能です。
お客様無料駐車場もご用意しておりますのでお気軽にお車でもご来店下さい。 -
バストイレ別
-
室内洗濯機置場
-
TVモニタ付きインターホン

リビング
キッチン
風呂
寝室
外観- 販売戸数
- 5戸
- 総戸数
- 5戸
- 間取り / 詳細
- 3LDK
LDK 16.2帖 1室/洋室 7.2帖 1室/洋室 5.2帖 1室/洋室 5.0帖 1室 - 向き
- 南
- 建物面積(坪数)
- 90.24㎡(27.29坪)
- 土地面積(坪数)
- 148.75㎡(44.99坪)
- 建ぺい率 /
容積率 - 40%/80%
- 築年月
- 2025年5月(新築)
- 駐車場 / 月額
- 有(2台) / -
- 土地権利
- 所有権
- 土地
(敷金 / 保証金) - - / -
- 建物構造
- 木造 / 2階建
- 傾斜地部分面積
- -
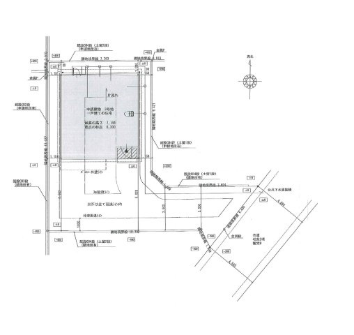
- 路地状敷地
- -
- 私道負担面積
- -
- セットバック
- 無
- 高圧線下面積
- -
- 施工会社
- -
- 用途地域
- 第一種低層住居専用
- 地目 / 地勢
- 宅地 / 平坦
- 接道状況
- 一方(東 公道 4.6m)
- 国土法届出要否
- 不要
- 都市計画
- 市街化区域
- 総区画数 /
販売区画数 - 5区画/5区画
- 現況
- 完成済み
- その他
法令上の制限 - 法第22条区域
- 取引態様
- 仲介
- 引渡し
- 即時
- 取引条件の
有効期限 - 2026年03月26日
- 設備条件
-
- 陽当り良好 / 閑静な住宅地 / 眺望良好 / カードキー / 現地見学会 / 室内洗濯機置場 / フローリング / バルコニー / プロパンガス / 公営水道 / 公共下水 / 二重サッシ / 24時間換気システム / 駐車2台可 / ガスコンロ / コンロ2口以上 / 食器洗い乾燥機 / システムキッチン / コンロ3口 / カウンターキッチン / バス・トイレ別 / 温水洗浄便座 / 洗髪洗面化粧台 / トイレ2ヶ所 / 浴室1坪以上 / 収納豊富 / TVモニタ付インターホン / 宅配ボックス / 複層ガラス / ディンプルキー
- 設備(その他)
-
-
-
- 物件番号
- 91232251
- 管理コード
- ◎
- 建築確認番号
- 第20240710号
- 情報更新日
- 2026年03月12日
- 次回更新予定日
- 2026年03月26日
- 取扱会社
-
- ハウススタイル
- 熊本県熊本市東区下南部3丁目3-40-2 1F
- TEL:096-384-6060
- 国土交通大臣 (1) 第009933号
- (公社)熊本県宅地建物取引業協会
(公社)宮崎県宅地建物取引業協会
(公社)全国宅地建物取引業保証協会
(一社)九州不動産公正取引協議会加盟
- 備考
- 洗面所に窓をつけて綺麗な空気を入れ替えましょう。生活を充実させる利便性が高い新築の戸建て物件です。こちらはTVインターフォン付きの物件です。幅広い方にお勧めしたい高ニーズな3LDKの物件です。住環境を見直しませんか。暮らしの中でも、住居は充実した生活を送るための大きな役割を担っています。不動産を探すなら、当社にお任せください。
-
スーパー
メガセンター 上熊本店
802m(11分)
-
銀行
熊本銀行京町台支店
991m(13分)
-
小学校
熊本市立池田小学校
1000m(13分)
-
ディスカウントショップ
MrMax(ミスターマックス) 熊本北店
1069m(14分)
-
スーパー
Maxvalu(マックスバリュ) 熊本北店
1195m(15分)
-
中学校
熊本市立井芹中学校
1592m(20分)
- 月々の支払額
- 円
- 購入希望物件価格
-
万円
- 頭金
-
万円
- 金利
-
%
- 返済額(ボーナス1回分)
-
万円
- 返済期間
-
年
現地見学会
物件の特徴
セールスポイント
池田小学校まで徒歩約13分。井芹中学校まで徒歩約20分。駐車2台可能。
ポイント
TVモニタ付インターホン シューズボックス システムキッチン バス トイレ別 浴室1坪以上
担当者のコメント
パノラマ画像
基本情報
設備条件
その他
周辺施設
支払いシミュレーション
※ボーナスは自動で年2回分で計算されます。
近隣の物件
よく見られている物件
熊本市西区池田2丁目第3-5棟(3号棟)
2,330万円
-
3LDK(90.24㎡)