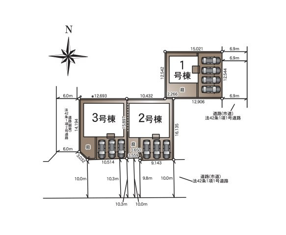
菊池市泗水町吉富第8₋3棟(1号棟)

2,288万円

熊本県菊池市泗水町吉富3300

熊本電気鉄道「御代志」駅徒歩94分

熊本電気鉄道「再春医療センター前」駅徒歩93分

熊本電気鉄道「熊本高専前」駅徒歩97分

価格
2,288万円
間取り/建物面積
4LDK/103.68㎡
所在地
熊本県菊池市泗水町吉富3300
築年
2026年1月(予定)
駐車
有(4台)
交通

熊本電気鉄道御代志」駅 徒歩94分車1分 0.4km

熊本電気鉄道再春医療センター前」駅 徒歩93分

熊本電気鉄道熊本高専前」駅 徒歩97分

菊池市泗水町吉富第8₋3棟(1号棟)の基本情報

物件名
菊池市泗水町吉富第8₋3棟(1号棟)
価格
2,288万円
建物面積
103.68㎡
土地面積
57.28坪(189.37㎡)
築年月
2026年1月(予定)
総戸数
3戸
所在地
熊本県菊池市泗水町吉富3300
交通

熊本電気鉄道御代志」駅 徒歩94分車1分 0.4km

熊本電気鉄道再春医療センター前」駅 徒歩93分

熊本電気鉄道熊本高専前」駅 徒歩97分

菊池市泗水町吉富第8₋3棟(1号棟)の詳細情報

設備条件
  • 閑静な住宅地
  • 建設住宅性能評価書付
  • 宅配ボックス
設備(その他)
    -
駐車場/月額
有(4台)/-
土地権利
所有権
国土法届出
不要
用途地域
無指定
取引態様
仲介
引渡し
2026年1月下旬

菊池市泗水町吉富第8₋3棟(1号棟)で募集中の物件

  1. 31.36坪 (103.68㎡)

    2,288万円(72.96万円/坪)

周辺施設

  • セブンイレブン 泗水吉富店の画像

    コンビニエンスストア

    セブンイレブン 泗水吉富店

    715m(9分)

  • マルショク 泗水店の画像

    スーパー

    マルショク 泗水店

    1678m(21分)

  • JA菊池泗水中央支所の画像

    銀行

    JA菊池泗水中央支所

    1702m(22分)

  • セブンイレブン 泗水富の原店の画像

    コンビニエンスストア

    セブンイレブン 泗水富の原店

    1713m(22分)

  • 肥後銀行泗水支店の画像

    銀行

    肥後銀行泗水支店

    1847m(24分)

  • 黒潮市場 泗水店の画像

    スーパー

    黒潮市場 泗水店

    1862m(24分)

  • 菊池市立泗水小学校の画像

    小学校

    菊池市立泗水小学校

    1968m(25分)

  • 菊池市立泗水中学校の画像

    中学校

    菊池市立泗水中学校

    2112m(27分)

  • 御代志駅の画像

    御代志駅

    7094m(89分)

  • 肥後大津駅の画像

    肥後大津駅

    16342m(205分)

近隣の物件

  1. 菊池市泗水町吉富

    4LDK (111.37㎡)

    2,398万円

  2. 菊池市泗水町吉富

    4LDK (111.14㎡)

    2,498万円

  3. 菊池市泗水町吉富

    4LDK (160.42㎡)

    2,698万円

  4. 菊池市隈府

    3LDK (94.38㎡)

    2,280万円

菊池市泗水町吉富第8₋3棟(1号棟)

お気軽にお問い合わせください

LINEからお問い合わせ 無料お問い合わせ

ハウススタイル

096-384-6060

09:00~18:00

(休:水曜日)