太宰府市観世音寺3丁目第1-2棟(2号棟)
3,788万円
西鉄大牟田線「都府楼前」駅徒歩21分
鹿児島本線「都府楼南」駅徒歩22分
西鉄太宰府線「西鉄五条」駅徒歩26分
【居間・リビング】明るく開放的なリビングダイニングは豊かな陽光が注ぎ込み、やすらぎの空間を演出してくれます。ご家族で楽しいひとときをお過ごし下さい。※家具はCGを合成したものです。
- 価格
- 3,788万円
- 間取り
- 4LDK
- 土地面積
- 246.86㎡
- 建物面積
- 95.37㎡
- 築年月
- 2025年7月(新築)
- ※事前に必ずお問い合わせください
- ■ご案内方法
お客様の専属担当がご自宅までの送迎や最寄駅までの送迎も行います。
又、弊社までご来店して頂きご案内も可能です。
お客様無料駐車場もご用意しておりますのでお気軽にお車でもご来店下さい。 -
バストイレ別
-
室内洗濯機置場
-
TVモニタ付きインターホン
-
浴室乾燥機

リビング
キッチン
風呂
寝室
外観- 販売戸数
- 1戸
- 総戸数
- 2戸
- 間取り / 詳細
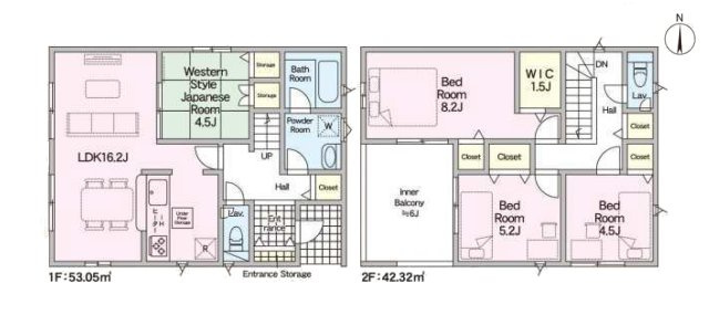
- 4LDK
LDK 16.2帖 1室/和室 4.5帖 1室/洋室 8.2帖 1室/洋室 5.2帖 1室/洋室 4.5帖 1室
4LDK+ウォークインクローゼット - 向き
- 南
- 建物面積(坪数)
- 95.37㎡(28.84坪)
- 土地面積(坪数)
- 246.86㎡(74.67坪)
- 建ぺい率 /
容積率 - 60%/160%
- 築年月
- 2025年7月(新築)
- 駐車場 /
月額料金 - 有(3台) -
- 土地権利
- 所有権
- 土地
(敷金 / 保証金) - - / -
- 建物構造
- 木造 / 2階建
- 傾斜地部分面積
- -
- 路地状敷地
- -
- 私道負担面積
- -
- セットバック
- 無
- 高圧線下面積
- -
- 施工会社
- -
- 用途地域
- 第一種住居
- 地目 / 地勢
- 宅地 / 平坦
- 接道状況
- 一方(南東 公道 6.1m)
- 国土法届出要否
- 不要
- 都市計画
- 市街化区域
- 総区画数 /
販売区画数 - 2区画/1区画
- 現況
- 完成済み
- その他
法令上の制限 - 法第22条区域
- 取引態様
- 仲介
- 引渡し
- 即時
- 取引条件の
有効期限 - 2025年11月24日
- 設備条件
-
- 陽当り良好 / 閑静な住宅地 / 建設住宅性能評価書付 / 眺望良好 / カードキー / 現地見学会 / 室内洗濯機置場 / フローリング / ベランダ / バルコニー / 公営水道 / 公共下水 / オール電化 / 二重サッシ / 24時間換気システム / インナーバルコニー / 駐車3台可 / 免震構造 / 耐震構造 / IHクッキングヒーター / コンロ2口以上 / システムキッチン / コンロ3口 / バス・トイレ別 / 浴室乾燥機 / 温水洗浄便座 / 洗髪洗面化粧台 / トイレ2ヶ所 / 浴室1坪以上 / 床下収納 / ウォークインクロゼット / 収納豊富 / TVモニタ付インターホン / 宅配ボックス / 複層ガラス / ディンプルキー
- 設備(その他)
-
-
-
- 物件番号
- 95954866
- 管理コード
- ◎
- 建築確認番号
- 第R06SHC124353号
- 情報更新日
- 2025年11月10日
- 次回更新予定日
- 2025年11月24日
- 備考
- 通学区域の小学校は太宰府市立水城小学校徒歩3分。荷物を受け取れないときは宅配ボックスに届けられるので、外出や入浴など私生活中に配達時間を気にする必要はありません。南向きの物件です。西鉄大牟田線都府楼前周辺の不動産を求めれば、通勤がよりスムーズになり便利です。不動産の詳細情報については、ハウススタイルまでお問合せ下さい。
-
中学校
太宰府市立学業院中学校
104m(2分)
-
小学校
太宰府市立水城小学校
221m(3分)
-
スーパー
マミーズ太宰府西店
890m(12分)
-
コンビニエンスストア
セブンイレブン通古賀3丁目店
1007m(13分)
-
コンビニエンスストア
セブンイレブン 太宰府国分店
1156m(15分)
-
スーパー
明治屋ジャンボ市太宰府店
1472m(19分)
-
駅
西鉄五条駅
2072m(26分)
-
駅
水城駅
2168m(28分)
-
銀行
九州労働金庫筑紫支店
2220m(28分)
-
銀行
九州労働金庫筑紫支店
3099m(39分)
- 月々の支払額
- 9.6円
- 購入希望物件価格
-
万円
- 頭金
-
万円
- 金利
-
%
- 返済額(ボーナス1回分)
-
万円
- 返済期間
-
年
現地見学会
物件の特徴
セールスポイント
水城小学校まで徒歩約3分。学業院中学校まで徒歩約3分。オール電化住宅。駐車3台可能。
ポイント
TVモニタ付インターホン シューズボックス システムキッチン バス トイレ別 浴室1坪以上
担当者のコメント
パノラマ画像
基本情報
設備条件
その他
周辺施設
支払いシミュレーション
※ボーナスは自動で年2回分で計算されます。
近隣の物件
太宰府市観世音寺3丁目第1-2棟(2号棟)
3,788万円
-
4LDK(95.37㎡)
小野 (福岡オフィス)