【内観:施工例】明るく開放的なリビングダイニングは豊かな陽光が注ぎ込み、やすらぎの空間を演出してくれます。ご家族で楽しいひとときをお過ごし下さい。※家具はCGを合成したものです。
- 価格
- 3,788万円
- 間取り
- 4LDK
- 土地面積
- 125.54㎡
- 建物面積
- 100.44㎡
- 築年月
- 2025年12月(予定)
- ※事前に必ずお問い合わせください
- ■ご案内方法
お客様の専属担当がご自宅までの送迎や最寄駅までの送迎も行います。
又、弊社までご来店して頂きご案内も可能です。
お客様無料駐車場もご用意しておりますのでお気軽にお車でもご来店下さい。 -
バストイレ別
-
室内洗濯機置場
-
TVモニタ付きインターホン
-
カウンターキッチン

リビング
キッチン
風呂
寝室
外観- 販売戸数
- 2戸
- 総戸数
- 2戸
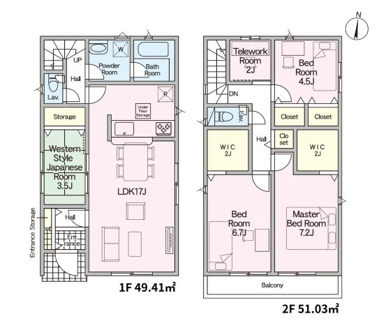
- 間取り / 詳細
- 4LDK
LDK 17.0帖 1室/和室 3.5帖 1室/洋室 7.2帖 1室/洋室 6.7帖 1室/洋室 4.5帖 1室
ウォークインクローゼット、テレワークルームあります。 - 向き
- 南
- 建物面積(坪数)
- 100.44㎡(30.38坪)
- 土地面積(坪数)
- 125.54㎡(37.97坪)
- 建ぺい率 /
容積率 - 70%/150%
- 築年月
- 2025年12月(予定)
- 駐車場 /
月額料金 - 有(3台) -
- 土地権利
- 所有権
- 土地
(敷金 / 保証金) - - / -
- 建物構造
- 木造 / 2階建
- 傾斜地部分面積
- -
- 路地状敷地
- -
- 私道負担面積
- -
- セットバック
- 無
- 高圧線下面積
- -
- 施工会社
- -
- 用途地域
- 第一種中高層住居専用
- 地目 / 地勢
- 宅地 / 平坦
- 接道状況
- 角地(南 公道 4.6m)(東 公道 4.6m)
- 国土法届出要否
- 不要
- 都市計画
- 市街化区域
- 総区画数 /
販売区画数 - 2区画/2区画
- 現況
- 未完成
- その他
法令上の制限 - 法第22条区域
- 取引態様
- 仲介
- 引渡し
- 2025年12月下旬
- 取引条件の
有効期限 - 2025年11月24日
- 設備条件
-
- 陽当り良好 / 閑静な住宅地 / 建設住宅性能評価書付 / 眺望良好 / カードキー / 現地見学会 / 室内洗濯機置場 / フローリング / バルコニー / 都市ガス / 公営水道 / 公共下水 / 二重サッシ / 24時間換気システム / 駐車3台可 / ガスコンロ / コンロ2口以上 / システムキッチン / カウンターキッチン / コンロ3口 / バス・トイレ別 / 温水洗浄便座 / 洗髪洗面化粧台 / トイレ2ヶ所 / 浴室1坪以上 / 床下収納 / ウォークインクロゼット / 収納豊富 / TVモニタ付インターホン / 宅配ボックス / 複層ガラス / ディンプルキー
- 設備(その他)
-
-
-
- 物件番号
- 97027040
- 管理コード
- △
- 建築確認番号
- 第R07SHC107838号
- 情報更新日
- 2025年11月10日
- 次回更新予定日
- 2025年11月24日
- 備考
- 春日南小学校まで徒歩15分。子どもを安心して学校に通わせたいファミリーにおすすめです。来訪者を確認できる、TVインターホン付きです。コチラの物件は、新築の戸建て物件で設備も充実しています。春日市を中心に不動産情報を扱う当社でなら、きっと博多南線博多南周辺の住まい探しにも役立つことでしょう。まずはご希望条件をお聞かせ下さい。
-
スーパー
サニーちくし台店
475m(6分)
-
スーパー
JA筑紫 ゆめ畑 春日店
667m(9分)
-
銀行
西日本シティ銀行春日支店
702m(9分)
-
コンビニエンスストア
セブンイレブン 春日大土居店
750m(10分)
-
コンビニエンスストア
セブンイレブン一の谷店
869m(11分)
-
小学校
春日南小学校
1177m(15分)
-
銀行
JA筑紫春日支店
1248m(16分)
-
中学校
春日南中学校
1383m(18分)
-
駅
春日駅
2141m(27分)
-
駅
博多南駅
2409m(31分)
- 月々の支払額
- 9.6円
- 購入希望物件価格
-
万円
- 頭金
-
万円
- 金利
-
%
- 返済額(ボーナス1回分)
-
万円
- 返済期間
-
年
現地見学会
物件の特徴
セールスポイント
春日南小学校まで徒歩約15分。春日南中学校まで徒歩約18分。駐車3台可能。
ポイント
TVモニタ付インターホン シューズボックス システムキッチン バス トイレ別 浴室1坪以上
担当者のコメント
パノラマ画像
基本情報
設備条件
その他
周辺施設
支払いシミュレーション
※ボーナスは自動で年2回分で計算されます。
近隣の物件
春日市紅葉ケ丘西2丁目第7-2棟(1号棟)
3,788万円
-
4LDK(100.44㎡)
小野 (福岡オフィス)