熊本市南区八分字町第14-2棟(2号棟)

2,088万円

熊本県熊本市南区八分字町3430-6

鹿児島本線「川尻」駅徒歩43分

三角線「西熊本」駅徒歩44分

鹿児島本線「西熊本」駅徒歩44分

価格
2,088万円
間取り/建物面積
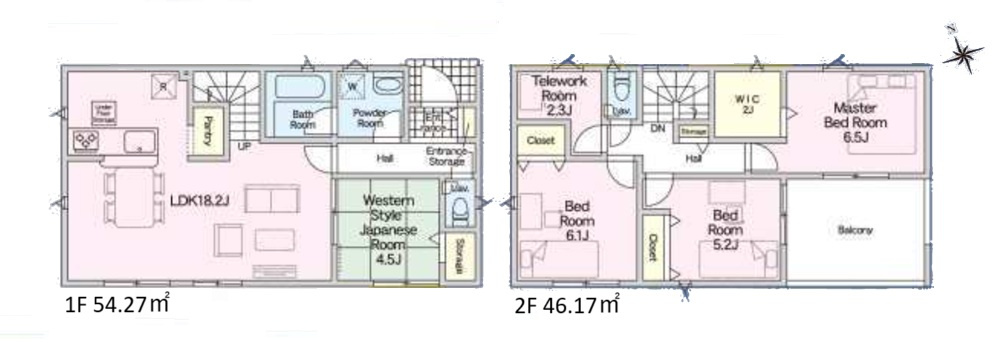
4LDK/100.44㎡
所在地
熊本県熊本市南区八分字町3430-6
築年
2025年9月(新築)
駐車
有(2台)
交通

鹿児島本線川尻」駅 徒歩43分車2分 0.5km

三角線西熊本」駅 徒歩44分

鹿児島本線西熊本」駅 徒歩44分

熊本市南区八分字町第14-2棟(2号棟)の基本情報

物件名
熊本市南区八分字町第14-2棟(2号棟)
価格
2,088万円
建物面積
100.44㎡
土地面積
60.95坪(201.50㎡)
築年月
2025年9月(新築)
総戸数
2戸
所在地
熊本県熊本市南区八分字町3430-6
交通

鹿児島本線川尻」駅 徒歩43分車2分 0.5km

三角線西熊本」駅 徒歩44分

鹿児島本線西熊本」駅 徒歩44分

熊本市南区八分字町第14-2棟(2号棟)の詳細情報

設備条件
  • 閑静な住宅地
  • 建設住宅性能評価書付
  • 駐車2台可
  • 宅配ボックス
設備(その他)
    -
駐車場/月額
有(2台)/-
土地権利
所有権
国土法届出
不要
用途地域
無指定
取引態様
仲介
引渡し
即時

熊本市南区八分字町第14-2棟(2号棟)で募集中の物件

  1. 30.38坪 (100.44㎡)

    2,088万円(34.26万円/坪)

周辺施設

  • 熊本市立飽田中学校の画像

    中学校

    熊本市立飽田中学校

    1045m(14分)

  • 鮮ど市場 白藤店の画像

    スーパー

    鮮ど市場 白藤店

    2160m(27分)

  • マルショク 白藤店の画像

    スーパー

    マルショク 白藤店

    2485m(32分)

  • 西部ショッピングセンターパディマーケットの画像

    ショッピングセンター

    西部ショッピングセンターパディマーケット

    2658m(34分)

  • スーパー・キッド 南高江店の画像

    ディスカウントショップ

    スーパー・キッド 南高江店

    3469m(44分)

熊本市南区八分字町第14-2棟(2号棟)

お気軽にお問い合わせください

LINEからお問い合わせ 無料お問い合わせ

ハウススタイル

096-384-6060

09:00~18:00

(休:水曜日)